












































OFF MARKET
9331 57th Ter
Miami-dade, Darlington Manor, Miami, FL
OFF MARKET
Asking
$810,000
BTC
10.545
ETH
382.25
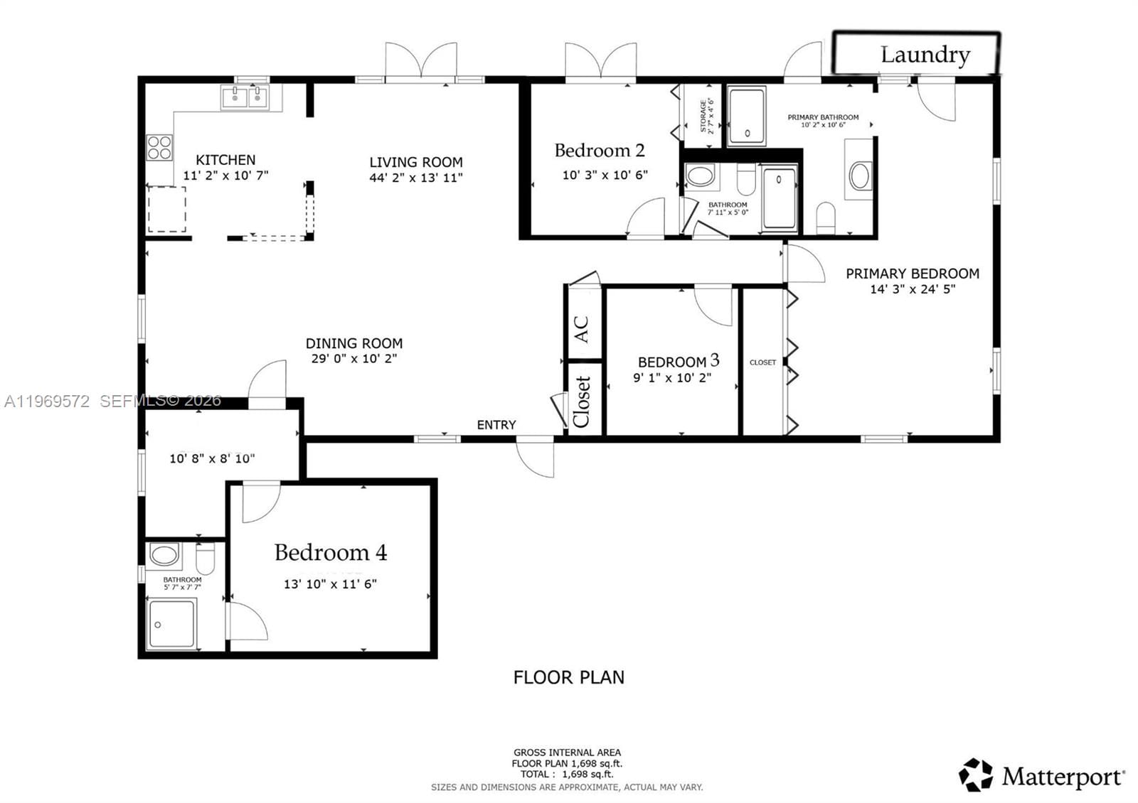
Beds
4
Baths
3
Home Size
1,958 sq. ft.
Year Built
1960
Beautiful 4 Bedroom / 3 Bath Pool Home in Highly Sought-After Darlington Manor
This beautifully maintained residence offers the perfect blend of comfort, functionality, and pride of ownership in one of the area’s most desirable neighborhoods. Featuring impact windows and doors and tile flooring throughout, the home showcases updated bathrooms and a well-appointed kitchen with stainless steel appliances.
Additional upgrades include a Titan water heater and two mini-split A/C systems (primary suite and efficiency) for added comfort and flexibility. The roof is approximately 12 years old, reflecting consistent care and upkeep.
An electric gate enhances privacy and security, while the expansive driveway easily accommodates multiple vehicles and even a boat. Step into the backyard oasis where a sparkling 4-foot-deep pool with a baby guard safety gate creates the perfect setting for family gatherings and outdoor entertaining.
Ideally located just minutes from the Palmetto Expressway, Florida Turnpike, Dadeland Mall, and Baptist Hospital — convenience meets lifestyle in this exceptional home.
LOADING
Location
Market Area
Miami-Dade
Neighborhood
DARLINGTON MANOR
Agent
Nancy Velasquez
+1 310 910 1722